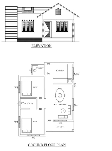
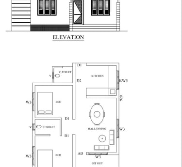
Innovative Building Design
Transforming Dreams into Reality in Kerala


100+
100
Client Satisfaction Guaranteed
Trusted Partner
Location
We are located in Kerala, India, specializing in innovative design solutions for villas, apartments, and commercial spaces.
Kerala
Kerala, India
Hours
9 AM - 6 PM
We atelier scale transformed your villas and apartment dreams into reality with our innovative design solutions.
Anas Abbas
★★★★★

